
This plan delivers everything from the open and airy main gathering areas of the kitchen and great room to the functionality of the primary suite. Additional rooms can meet the need for a guest suite, home office, or whatever you want to make them. An entrance directly from the garage invites you into a mudroom and drop zone. The full unfinished basement provides tons of storage or extra space for optional finishing. If you prefer not to give up the storage or need more space, we offer an option to finish a loft area above the main level. As always, we invite you to share your ideas to customize the plans to suit your needs and wants.
This plan delivers everything from the open and airy main gathering areas of the kitchen and great room to the functionality of the primary suite. Additional rooms can meet the need for a guest suite, home office, or whatever you want to make them. An entrance directly from the garage invites you into a mudroom and drop zone. The full unfinished basement provides tons of storage or extra space for optional finishing. If you prefer not to give up the storage or need more space, we offer an option to finish a loft area above the main level. As always, we invite you to share your ideas to customize the plans to suit your needs and wants.
About This Floor Plan
This plan delivers everything from the open and airy main gathering areas of the kitchen and great room to the functionality of the primary suite. Additional rooms can meet the need for a guest suite, home office, or whatever you want to make them. An entrance directly from the garage invites you into a mudroom and drop zone. The full unfinished basement provides tons of storage or extra space for optional finishing. If you prefer not to give up the storage or need more space, we offer an option to finish a loft area above the main level. As always, we invite you to share your ideas to customize the plans to suit your needs and wants.

Features
The Bernstein floor plan features a two-story layout with a spacious porch at the front. The exterior design allows for a balance of functional entryways, including a dedicated garage entrance. The garage measures 20’0” x 18’11”, providing ample parking and storage.
The kitchen is an open-concept design with modern utility in mind. It measures 15’8½” x 14’7” and includes:
- An island with seating for casual dining or meal preparation.
- Ample countertop space for cooking and entertaining.
- Convenient proximity to the breakfast area and great room, ensuring easy flow during gatherings.
First Floor: A half-bath is conveniently located near the foyer, ideal for guests.
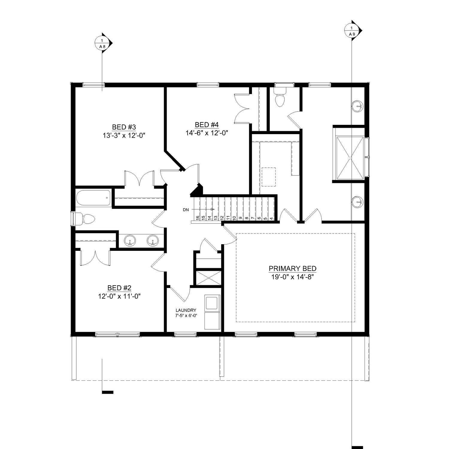
Second Floor: Includes two full bathrooms:
- The primary bathroom connects to the spacious primary bedroom and offers dual vanities, a large shower, and a private water closet.
- A secondary bathroom with a shower/tub combo and dual vanities is accessible to other bedrooms.
The Bernstein floor plan incorporates energy-efficient designs, including insulated walls, energy-saving windows, and an HVAC system optimized for maintaining comfort while minimizing energy costs.
The interior layout includes:
- Four bedrooms located on the second floor, with a primary suite measuring 19’0” x 14’8”.
- A great room measuring 23’1” x 14’6”, designed as the heart of the home, perfect for entertaining and family relaxation.
- A laundry room is conveniently situated on the second floor.
OYL Homes ensures durability and peace of mind with their comprehensive protection plan, which includes:
- Structural warranties.
- Energy system guarantees.
Options for customizable upgrades based on the buyer’s preferences.

Additional Features
.jpg)
.jpg)
.jpg)

Frequently asked questions
Question
Answer
Question
Answer
Question
Answer
Question
Answer












.jpg)
.jpg)
.jpg)



