
This plan seamlessly blends practicality and elegance, featuring open and airy spaces that connect the kitchen, dining area, and great room for effortless entertaining. The primary suite provides a private retreat with a luxurious ensuite, while additional rooms adapt to your lifestyle, serving as guest bedrooms, an office, or a hobby space. A convenient garage entrance leads to a mudroom, adding everyday ease. The unfinished basement offers abundant storage or customization potential, while optional loft and bathroom upgrades ensure this home evolves with your needs. As always, we welcome your ideas to tailor this plan to suit your unique vision.
This plan seamlessly blends practicality and elegance, featuring open and airy spaces that connect the kitchen, dining area, and great room for effortless entertaining. The primary suite provides a private retreat with a luxurious ensuite, while additional rooms adapt to your lifestyle, serving as guest bedrooms, an office, or a hobby space. A convenient garage entrance leads to a mudroom, adding everyday ease. The unfinished basement offers abundant storage or customization potential, while optional loft and bathroom upgrades ensure this home evolves with your needs. As always, we welcome your ideas to tailor this plan to suit your unique vision.
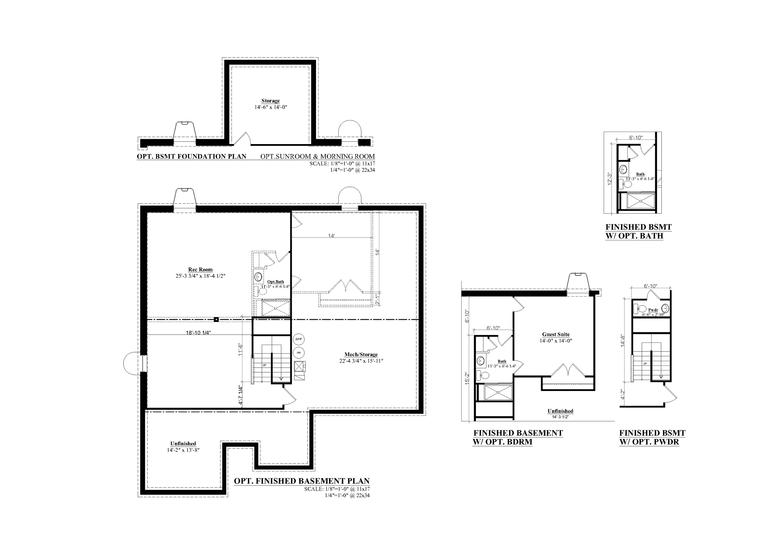
About This Floor Plan
This plan seamlessly blends practicality and elegance, featuring open and airy spaces that connect the kitchen, dining area, and great room for effortless entertaining. The primary suite provides a private retreat with a luxurious ensuite, while additional rooms adapt to your lifestyle, serving as guest bedrooms, an office, or a hobby space. A convenient garage entrance leads to a mudroom, adding everyday ease. The unfinished basement offers abundant storage or customization potential, while optional loft and bathroom upgrades ensure this home evolves with your needs. As always, we welcome your ideas to tailor this plan to suit your unique vision.
.png)
Explore Gallery
Features
The Brahms floor plan showcases a classic single-family design with a welcoming front porch that enhances curb appeal. The two-car garage adds functionality and convenience, providing ample space for vehicles and storage.
The kitchen features a spacious, open-concept design with a central island for meal prep and casual dining. It connects seamlessly to the dining area and great room, creating an ideal space for hosting gatherings and family meals.
- Primary Bathroom: A luxurious ensuite with dual vanities, a soaking tub, and a separate shower for added comfort and style.
- Additional Bathrooms: Secondary bathrooms are conveniently located near the guest and family bedrooms. Options include upgrades for a designer or deluxe bath.
- Basement Bathrooms: Optional bathrooms can be added to the finished basement for additional convenience.
The Brahms home is built with energy efficiency in mind, offering:
- High-performance windows to regulate indoor temperatures.
- Smart HVAC systems for consistent comfort and lower energy bills.
- Superior insulation to optimize energy use.
- Flexible Spaces: Options for additional bedrooms, an office, or a loft provide versatility.
- Great Room: A spacious area perfect for relaxing or entertaining, with an optional fireplace for added warmth.
- Mudroom and Storage: A dedicated mudroom and ample unfinished storage space near the garage entrance enhance functionality.
This home includes OYL Homes’ comprehensive protection plan, offering:
- Structural warranties for long-term peace of mind.
- Options for upgrades and customization.
- Assurance of quality craftsmanship and durable materials.












